Получайте Бонусы за статьи
29 мая 2023
Изобретая кухню: как главное пространство дома стало эргономичным
3 0 0 801 10 мин

Изобретая кухню: как главное пространство дома стало эргономичным

Научно-технический прогресс и прагматизм в XX веке победили хаос старинного бытового уклада. И лучший способ в этом убедиться — проследить за тем, как идеи комфорта и здорового образа жизни, а вовсе даже не вековые архитектурные традиции, всего за несколько десятилетий сформировали привычный большинству из нас образ «традиционного» кухонного интерьера. А заодно узнать, кому они принадлежали и главное — как работают сегодня.

Содержание

Она придумала кухню

Так вышло, что множество мелких и крупных бытовых решений, которыми мы привыкли пользоваться ежедневно, начиная с ведра с педалью и полок в дверце холодильника и заканчивая системой расположения кухонных ящиков, придумала еще в прошлом веке Лилиан Гилбрет — изобретательница, психолог, промышленный инженер и мать 12 детей родом из Калифорнии. По совместительству она была одной из первых женщин в США, получивших докторскую степень, и первой в истории специалисткой в области организационной психологии, то есть науки о поведении человека на рабочем месте. Вместе с мужем, партнером и соавтором Фрэнком Лилиан еще в 1910-х исследовала, из каких элементов состоит человеческий трудовой процесс в самых разных жизненных сферах, включая быт, а после того как в 1924 году Фрэнк Гилбрет неожиданно умер и ей пришлось продолжить научную деятельность в одиночку, одним из ее первых крупных проектов стал технический план… идеальной кухни. Настолько идеальной, чтобы ее хозяйка могла замесить пирог, поставить его в духовку и вымыть посуду, совершив при этом минимальное количество телодвижений. Почему именно пирог? Потому что это было единственное блюдо, которое умела готовить сама Гилбрет, выросшая в состоятельной семье с прислугой и слишком высоко ценившая свое время, чтобы заниматься готовкой.

К счастью для нас, ценность неоплачиваемой и утомительной работы по дому, которая во все времена лежит в основном на хозяйках, а вовсе не на нанятых работниках, Лилиан уже в 1920-х понимала лучше многих. Она сконструировала «Практическую кухню».

Плита с духовкой и рабочий стол находятся рядом, шкафы с бакалеей — над головой, полки с посудой — под рабочей столешницей, а холодильник — в двух шагах от стола и раковины. В сравнении с обычной бессистемной кухней тех лет, где мебель стояла как попало, а продукты часто хранились в отдельных комнатах-кладовках, этот вариант показал в тестах впечатляющую эффективность. Количество рабочих манипуляций, которые потребовались для приготовления одного и того же клубничного пирога на новой кухне по сравнению с обыкновенной, сократилось с 97 до 64, а количество реально сделанных шагов — с 281 до 45.

Концепция оптимальной кухни Гилбрет стала набирать популярность с того момента, как о ней начали писать в популярных журналах, а к 1940-м годам разработанная ею «круговая маршрутизация» (circular routing) стала известна как «рабочий треугольник». Именно на этот шаблон интерьерные дизайнеры так или иначе продолжают ориентироваться до сих пор: в эффективно спланированной кухне периметр треугольника, образованного плитой, раковиной и холодильником, не превышает 8 метров, а расстояние между кухонными приборами обычно составляет не больше 1,5 метров.

Еще по теме

Как преобразить кухню: рекомендации по оптимизации пространства и хранения

29.03.2023

Как преобразить кухню: рекомендации по оптимизации пространства и хранения

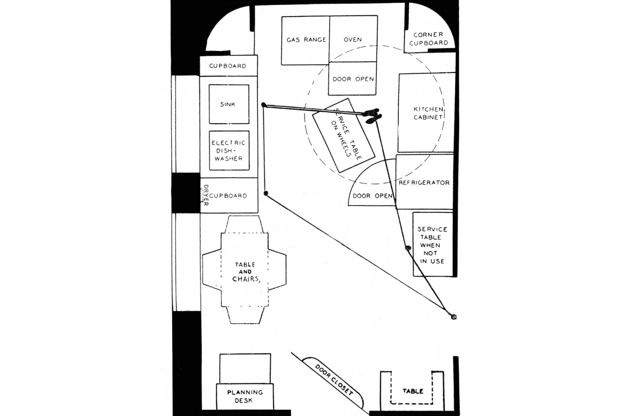
План кухни Лилиан Гилбрет для New York Herald Tribune

Источник изображения: Библиотека Университета Пердью, где преподавала Лилиан Гилбрет

Любопытно, кстати, что тележка на колесиках, которую Лилиан предлагала активно использовать в качестве дополнительной рабочей поверхности и способа перемещать посуду по кухне (например, подвозить к раковине или холодильнику), хотя и утратила со временем практичность, совсем из обихода не исчезла. К примеру, она остается достаточно популярным товаром в каталоге IKEA во всем мире.

Идея становится классикой

Конструкция привычной нам сегодня «сплошной» кухни с раковиной, плитой и шкафами, объединенными общей рабочей поверхностью, была окончательно воплощена Лилиан Гилбрет в конце 1940-х годов. Весь свой опыт и знания она вложила в специальную разработку для Нью-Йоркской кардиологической ассоциации — кухню для женщин-сердечников, которая сокращала бы физическую нагрузку при каждодневном использовании. Демонстрационный образец Heart Kitchen 1948 года практически сразу был замечен Институтом физической медицины и реабилитации при Нью-Йоркском университете под руководством Говарда Раска, который активно участвовал в федеральной программе послевоенной Америки по реабилитации инвалидов и возвращению их к работе и обычной жизни.

Демонстрационный образец Heart Kitchen, построенный в 1952 году в Мэдисонской профессиональной школе для взрослых

Источник изображения: placesjournal.org

Как только проект Гилбрет оказался в их руках, его масштабы моментально расширились, охватив сначала всех людей с ограниченными физическими возможностями, которые с помощью этой кухни заново (и довольно эффективно) осваивали самостоятельное приготовление еды, а затем и обычных домохозяек по всей стране. Оказалось, идеи удобства и гибкости (под этим Гилбрет понимала творческое переосмысление быта и освобождающий подход к работе по дому) были нужны не только людям с особыми потребностями, а вообще всем, кто готовит дома. Постепенно за два следующих десятилетия дизайн домашней кухни, изначально позаимствованный буквально из реабилитационной литературы, стал универсальным. А в перспективе следующих 50 лет — той самой «классикой», которая как будто была с нами всегда.

Как классика работает сейчас

Какой бы вы ни видели вашу будущую кухню с точки зрения цвета и фактуры сегодня — из дерева или цветного ламината, светлой или темной, — главными ее характеристиками по-прежнему остаются все те же удобство и практичность, позволяющие оптимизировать большую часть рабочих процессов. Материалы, которые традиционно используются в интерьере кухни, впрочем, служат тем же целям. К примеру, столешницы и фартуки из натурального или искусственного камня (или современного компакт-ламината, имитирующего мрамор или гранит) в сравнении с деревом и даже металлом меньше подвержены износу, к тому же добавляют дизайну солидности.

С «солидностью», однако, работать стоит осторожно: массивные и нефункциональные декоративные элементы вроде пилястров и барельефов на мебели, громоздкие хрустальные люстры, позолоченная фурнитура и прочий тяжелый люкс хороши в барочных дворцах и музеях, а в современных квартирах и коттеджах выглядят неуместно. Хорошая классическая кухня с точки зрения обустройства — это в первую очередь продуманное и не перегруженное пространство, в которое одновременно впишутся и последняя модель умного холодильника, и кухонная машина в дизайне 50-х. А чтобы не ошибиться со стилем, придерживаться стоит принципа умеренности: дизайн и технологии, как учила Лилиан Гилбрет, должны или дополнять, или компенсировать друг друга, а не спорить между собой.

Цвет

В классическом интерьере, как ни странно, не существует запретов на цвет — важно только, чтобы палитра была сдержанной и деликатной, а сочетались в пространстве в конечном счете не более трех основных цветов (или два основных и до четырех дополнительных оттенков).

Белый и кремовый, а также приглушенные оттенки синего, оливкового, светло-серого или бордо в классической корпусной мебели лучше всего работают с деревянными полами или монохромной керамической плиткой.

Черный или графит хорошо смотрятся на фоне светлых стен, бетона или кирпича. Как уже говорилось выше, каменные или стилизованные под камень каунтеры часто становятся стилеобразующим элементом кухни. Например, большая светлая рабочая поверхность (белые мрамор, кварц или ламинат) может помочь зрительно расширить пространство, задать основной тон для остальных крупных компонентов и избавить помещение от лишней пестроты.

Подходящие белые варочная поверхность, встраиваемые духовка и микроволновая печь, а также раковина и смеситель, к примеру, позволят легко вписать в интерьер дополнительный цветовой акцент — допустим, контрастную мозаику на фартуке или любимые винтажные шторы с цветочным принтом на окнах.

Свет

Подвесные шкафчики со стеклянными дверцами и теплой подсветкой внутри, создающие по вечерам приятный ностальгический уют, заодно с подвесными люстрами-абажурами в интерьере классической кухни не сдают позиций с конца 70-х. Хорошая (и тоже обязательно теплая) лампа или несколько одинаковых ламп в ряд над большим обеденным столом — отличный способ отделить друг от друга с помощью света рабочую зону и зону отдыха.

● площадь освещения — 6,7 м²
● тканевый плафон

У кухонь с так называемой открытой планировкой (объединенных, например, c гостиной) такой зоной может также стать барная стойка или внешняя часть кухонного острова, которую удобно использовать как обычный стол. Не слишком громоздкие торшеры и настольные светильники, LED-подсветка над каунтером и другие локальные источники света «усложняют» классическое пространство, помогая при этом не захламлять его бесполезными объектами.

Техника

Одно из преимуществ классической кухни заключается в том, что традиционные корпусные гарнитуры позволяют при желании спрятать большую часть габаритной бытовой техники (включая стиральные машины) за одинаковыми панелями и дверцами и разместить, словно конструктор, все юниты, включая ниши и ящики для хранения, максимально удачным образом практически в любом помещении.

Например, независимые духовые шкафы (в сдержанном и минималистичном дизайне, который сработает с любой мебелью) можно разместить в паре с микроволновкой на уровне рук одну под другой в небольшом помещении.

Если хочется, наоборот, «разбить» однородный фасад, красивую массивную классическую плиту можно использовать рядом со свободной рабочей зоной (чтобы горячий клубничный пирог не пришлось далеко нести!).

● пять газовых конфорок
● электрическая духовка
● трехслойная дверца

Вместительную посудомойку стоит установить недалеко от раковины, системы встроенных мусорных контейнеров и шкафчика с сушкой.

● 8 программ
● режим турбосушки

Холодильник (встроенный или, если позволяет место, объемный двухдверный) обычно ставят подальше от нагревающихся духовки или плиты, но не слишком далеко от каунтера или острова, где планируется нарезать, взбивать, смешивать и пользоваться разной мелкой техникой.

● no frost
● встроенный освежитель воздуха

Вытяжку можно встроить в верхнюю полку или замаскировать, поместив в специальный подвесной элемент, если он есть в вашем мебельном гарнитуре. Словом, вся или почти вся техника может быть стандартизирована и декорирована таким образом, чтобы бытовые приборы по возможности не разрушали единый стиль и со временем могли легко заменяться на новые, более современные модели.

● полностью встраиваемая
● три режима
● жиропоглощающий фильтр

Остров

Двух мнений быть не может: если для полноценного острова на кухне есть место, значит, остров должен на ней быть. Дополнительное рабочее пространство плюс возможность встроить вспомогательную технику (небольшой винный шкаф или маленький морозильник), врезать еще одну варочную панель или раковину, если позволяют коммуникации, добавить ящиков для хранения посуды, инструментов или хозяйственных принадлежностей и так далее — у острова может быть сразу несколько полезных функций.

Остров
● автопрограммы охлаждения напитков
● защита от детей
● защитное покрытие от отпечатков пальцев

Конечно, у острова есть и как минимум одна декоративная функция: он может быть контрастным и отличаться по цвету от основного гарнитура, если площадь помещения позволяет сделать заметный дизайнерский акцент. И напротив: он может полностью совпадать по стилю с мебелью, создавая ощущение монолитности. Также остров может стать частью непрерывной L-образной конструкции, расширяясь с внешней стороны на один дополнительный юнит — классическое решение для студийных планировок.

Понравилась статья?

Комментарии

Авторизуйтесь, чтобы иметь возможность писать комментарии:

Спасибо, что вам есть что сказать

Попробуйте расширить свою мысль и написать статью — и получите за это Бонусы.

Написать статью Подробнее